信管飞送货单、信管飞RMS软件、信管飞仓库管理软件,都支持开单打印单据,软件中内置了十几种打印模板供客户选择使用,也支持自定义设计打印模板,有客户打印时需要行数是固定的,我们以送货单软件为例设置下如何固定打印行数?
未调整前打印预览显示如下图:

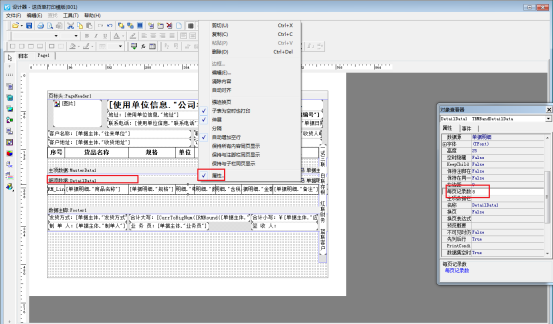
导航栏选择“业务处理”—》“新开订单”—》打印—》打印格式设计—》设计格式,进入打印模板的设计器界面,选中细项数据空白处,右键勾选显示属性,每页记录数内输入固定的数值,如下图所示:

设置完成后保存预览模板,可以看到行数已按固定数值显示了:

欢迎下载试用这款可以自定义设计打印模板的软件:信管飞送货单软件